Pobierz DTR.
Pobierz etykiete energetyczną.
Pobierz deklaracje zgodności.
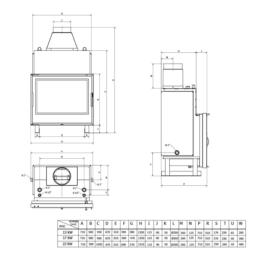
Wkład kominkowy z płaszczem wodnym LAVA TK BASE 22 kW – układ zamknięty (2,5 bar)
Wkład kominkowy z płaszczem wodnym LAVA TK BASE 22 kW z półokrągłą szybą oraz żeliwnym frontem to wydajne i funkcjonalne rozwiązanie do ogrzewania domu. Urządzenie przeznaczone jest do pracy w układzie zamkniętym (2,5 bar), dzięki czemu zapewnia bezpieczne i stabilne działanie instalacji grzewczej.
Dzięki zastosowaniu płaszcza wodnego kominek efektywnie przekazuje ciepło do instalacji centralnego ogrzewania, co pozwala na równomierne ogrzewanie pomieszczeń oraz oszczędność energii.
Budowa i działanie termokominka TK BASE
Termokominek TK BASE to solidny stalowy wkład kominkowy z płaszczem wodnym, zaprojektowany z myślą o trwałości oraz wysokiej efektywności. Co ważne, urządzenie zostało wyposażone w wężownicę schładzającą, która zwiększa bezpieczeństwo użytkowania, zarówno w układach otwartych, jak i zamkniętych.
Dodatkowo kominek doskonale sprawdza się w nowoczesnych domach z wentylacją mechaniczną oraz rekuperacją, co czyni go uniwersalnym źródłem ciepła.
Płaszcz wewnętrzny i zewnętrzny wykonano z wytrzymałej blachy o grubości 3,5 mm, dzięki czemu konstrukcja jest trwała i odporna na intensywną eksploatację. Ponadto rozbudowany wymiennik wodny, umieszczony w dolnej części kominka, oparty jest na 2-ciągowym systemie przepływu spalin z dwoma lamelami, co zwiększa efektywność przekazywania ciepła.
Wbudowana przepustnica umożliwia wstępną regulację ciągu kominowego, natomiast system by-pass pozwala ominąć górną część wymiennika, co ułatwia rozpalanie oraz poprawia komfort użytkowania.
Co więcej, dzięki ograniczeniu emisji ciepła przez front kominka, niemal cała energia przekazywana jest bezpośrednio do płaszcza wodnego, co znacząco zwiększa sprawność urządzenia.
Dla pełnej funkcjonalności kominek wyposażono w:
czopuch spalinowy
popielnik
dolot powietrza z zewnątrz (Φ100)
wyjście spalin do komina (Φ200)
Wersja podstawowa – wyposażenie
W wersji podstawowej wkład kominkowy LAVA TK BASE 22 kW oferuje praktyczne i estetyczne rozwiązania. Przede wszystkim posiada regulowane stopy (zakres 40 mm), które umożliwiają dokładne wypoziomowanie urządzenia.
Dodatkowo front kominka wykończony jest czarną, matową powłoką, a okucia oraz elementy wykończeniowe utrzymane są w klasycznej czerni. Kominek wyposażono również w nowoczesną, płaską klamkę, która estetycznie chowa się w froncie.
Drzwi otwierają się standardowo na lewą stronę (zawias po lewej, klamka po prawej), co zapewnia wygodę użytkowania dla osób praworęcznych. Należy jednak zaznaczyć, że w tym modelu nie ma możliwości zmiany kierunku otwierania drzwi.
Ponadto istnieje możliwość rozbudowy kominka o:
dodatkowy stojak
zmianę okuć i klamki na wersję satynową
zastosowanie strukturalnej powłoki frontu
Dane techniczne:
- Moc cieplna nominalna: 22 kW
- Moc cieplna obiegu wodnego: 19,2 kW
- Moc cieplna przekazywana do pomieszczenia: 2,3 kW
- Powierzchnia ogrzewania: 150 – 230 m2
- Pojemność płaszcza wodnego: 49 L
- Rekuperacja: tak
- Waga kominka do układu zamkniętego (UZ): 226 kg
- Wymiary komory spalania: szerokość: 605 mm, głębokość: 525 mm, wysokość: 375 mm
- Stałopalność przy mocy nominalnej: 1,13 h
- Trwałość palenia: 3 h
- Jednorazowy załadunek paliwa: 8 kg
- Sprawność cieplna: 79,1 %
- Emisja CO 13% O2: 0,22 %
- Strumień masy spalin: 17,72 g/s
- Klasa energetyczna: C
- Ekoprojekt: nie
- Średnia temperatura spalin: 283 °C
- Dopuszczalne ciśnienie robocze: 2,5 bar
- Ciśnienie próby wodnej: 4 bary
- Maksymalna temperatura robocza: 95 °C
- Odstęp części palnych od szyby: 200 cm
- Ciąg kominowy: przy mocy nominalnej: 12 Pa, przy obciążeniu zredukowanym: 6 Pa
Paliwo
- rodzaj: polana drzew liściastych
- długość: ~33 cm
- obwód: 30÷45 cm
- wilgotność: < 20 %
Opcje dodatkowe:
Moduł podstawy
Do kominków wodnych standardowo dołączamy stopy regulacyjne. Stopy pozwolą wypoziomować urządzenie na podłożu +/- 4 cm. Jeśli jednak chcemy podnieść urządzenie na wysokość klasycznej zabudowy kominkowej możemy użyć dedykowanego do tego modułu. Uniwersalny komplet dwóch ramek pozwala z łatwością ustawić kominek na pożądanej wysokości. Po zamontowaniu modułu uzyskamy dodatkowe 20 cm wysokości.
Zestaw okuć satynowych
Możliwość zmiany standardowej czarnej klamki i gałek cięgien powietrza na satynowe.
Struktura Titanium
Nadanie strukturalnego malowania frontu.



























Opinie
Na razie nie ma opinii o produkcie.